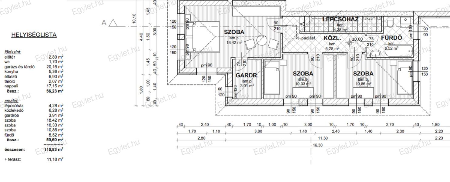
Eladó Családi ház Budapest 104 800 000 , # 2425

Az ingatlan adatlapja:Adatlap
Budapest Eladó Családi ház