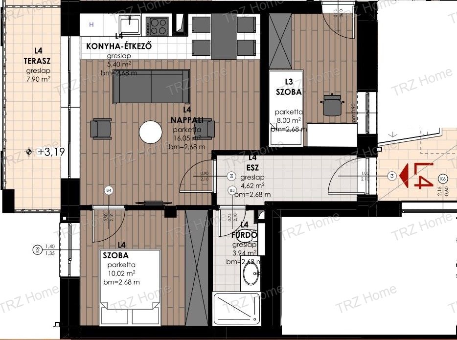
Eladó Lakás Budapest 55 990 000 , # 232

Az ingatlan adatlapja:Adatlap
Budapest Eladó Lakás