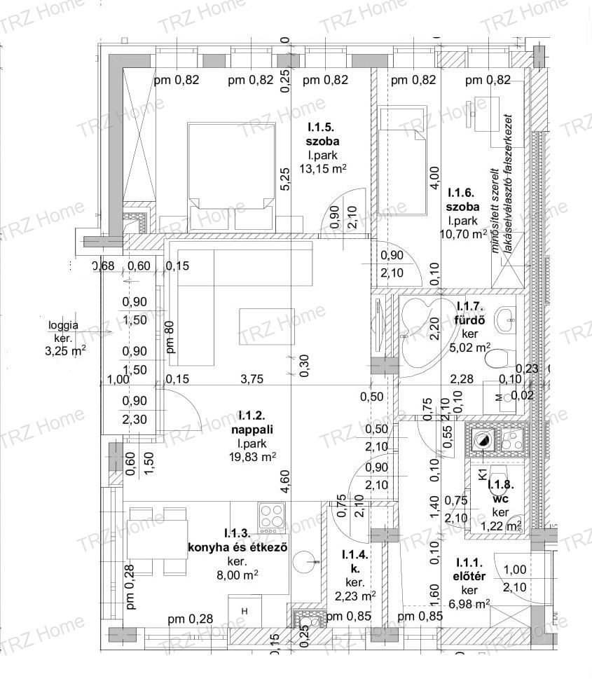
Eladó Lakás Budapest 84 900 000 , # 146

Az ingatlan adatlapja:Adatlap
Budapest Eladó Lakás