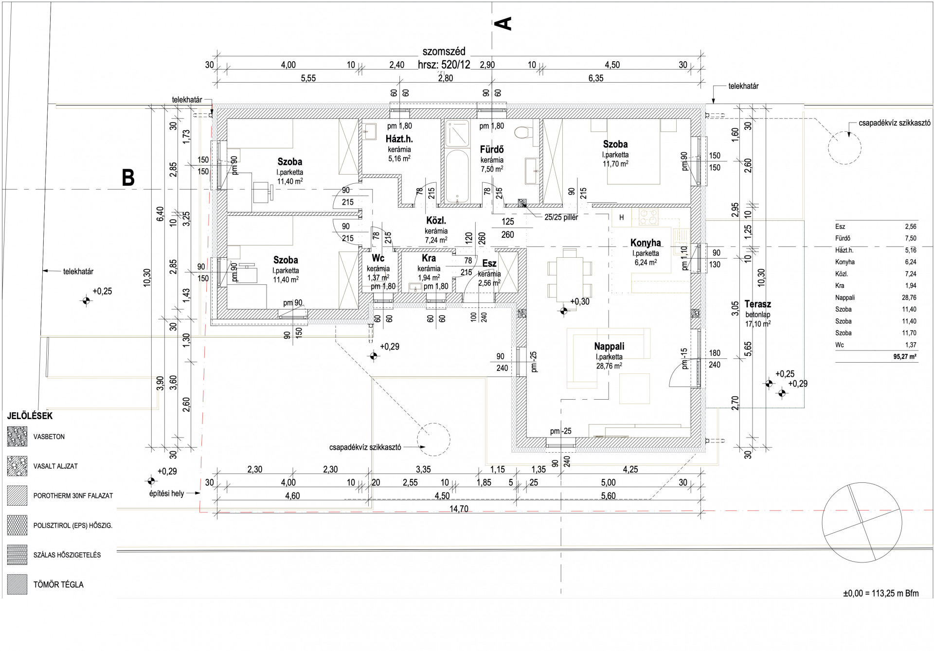
Eladó Családi ház Hegyeshalom 53 816 000 , # 1138

Az ingatlan adatlapja:Adatlap
Hegyeshalom Eladó Családi ház